МН 1.30 №597

Цена строительства от 2 750 000 ₽* * Стоимость не является окончательной
Заявка на консультацию
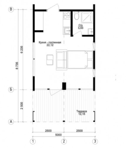
  • Общая площадь 45 м2
  • Длина 9.11 м
  • Ширина 5.1 м
  • Материал стен Каркас
  • Количество этажей 1
  • Подвал Нет
  • Мансарда без мансарды
  • Гараж Нет
  • Терраса Да
  • Проживание Круглогодичное
  • Количество комнат 1
  • Количество санузлов 1
  • Вид проекта дом
  • Застройщик МодульХаус
  • Архитектурный стиль Барнхаус
  • Отделка фасада Комбинированная
  • Крыша Двускатная
  • Можно купить домокомплект Нет
  • Модульный тип строения Да
Планировки
Описание проекта

МН 1.30 – это компактный и функциональный модульный дом площадью 47 м², идеально подходящий для гостевого домика, дачи, мастерской или кемпинга. Несмотря на небольшие размеры, проект продуман до мелочей и предлагает комфортное пространство для проживания или работы.


Вас может заинтересовать
Вас может заинтересовать

Выбор местоположения

Задать вопрос / написать нам

E-mail: domgis@mail.ru

Мы свяжемся с Вами в течение дня.

Тех. поддержка
Предмет обращения:
Тукущая страница

Мы свяжемся с Вами в течение дня.

Уведомление
Предмет обращения:
Тукущая страница
Обратный звонок
Обратный звонок
Выберите ваш город
Пожаловаться

Объявление опубликовано.
Изменения сохранены

Период публикации - бессрочный, при условии подтверждения актуальности каждые 50 дней. Уведомления будут отправляться на Вашу электронную почту.

Выберите причину снятия с публикации

Снятые с публикации объявления не участвуют в поиске и недоступны для подробного просмотра.

Для повторной публикации нажмите «Вернуть в публикацию»