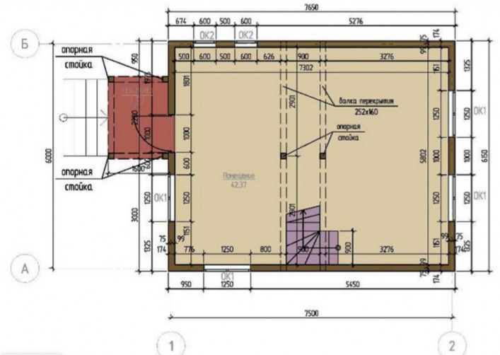
"Тоно" - красивый двухэтажный небольшой дом свободной планировки.
Фасад в данном проекте можно легко поменять на любой декоративный материал (штукатурка, кирпич, фасадная плитка и т.п.). Также, по Вашему пожеланию, мы легко можем внести изменения в этот проект.
Фасад и внешний облик:
Выбор местоположения
Мы свяжемся с Вами в течение дня.